22.(17分)

(1)几位同学做“用插针法测定玻璃折射率”实验,图示直线aa′与bb′表示在白纸上画出的玻璃砖的两个界面.几位同学进行了如下操作:

A. 甲同学选定的玻璃砖两个光学面aa′与bb′,不平行, 其它操作正确.

第22题(1)图
 
B.乙同学在白纸上正确画出平行玻璃砖的两个界面aa′与bb′后,将玻璃砖向aa′方向平移了少许,其它操作正确。

C.丙同学在白纸上画aa′、bb′,两界面时,其间距比平行玻璃砖两光学面的间距稍微大些,其它操作正确。

上述几位同学的操作,对玻璃折射率的测定结果没有影响的是    (填写字母代号).

(2)现有一块小量程电流表G(表头),满偏电流为50µA,内阻约为800-850Ω,把它改装成1mA、10mA的两量程电流表。可供选择的器材有:

滑动变阻器R1,最大阻值20Ω;滑动变阻器R2,最大阻值100kΩ;

电阻箱R′,最大阻值9999Ω;定值电阻R0,阻值1kΩ;

电池E1,电动势1.5V;电池E2,电动势3.0V;电池E3,电动势4.5V;(所有电池内阻不计);

标准电流表A,满偏电流1.5mA;

单刀单掷开关S1和S2,单刀双掷开关S3,电阻丝及导线若干。

①    采用如图所示电路测量表头的内阻,为提高测量精确度,选用的滑动变阻器应为

 ;选用的电池应为

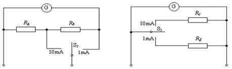
②将G改装成两量程电流表。现有两种备选电路,如下图甲和乙所示。图 为合理电路,另一电路不合理的理由为

第22题(2)图
 
 

③将改装后的电流表   与标准电流表   每一小格进行核对(仅核对1mA量程),请在答题卷上虚线框内画出所用电路图。

 0  135322  135330  135336  135340  135346  135348  135352  135358  135360  135366  135372  135376  135378  135382  135388  135390  135396  135400  135402  135406  135408  135412  135414  135416  135417  135418  135420  135421  135422  135424  135426  135430  135432  135436  135438  135442  135448  135450  135456  135460  135462  135466  135472  135478  135480  135486  135490  135492  135498  135502  135508  135516  447348 

违法和不良信息举报电话:027-86699610 举报邮箱:58377363@163.com

精英家教网