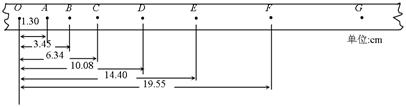
如图所示是某同学用电磁打点计时器分析匀变速直线运动时,从若干纸带中选取的一条纸带的一部分,相邻两个计数点之间还有4个点。他对各个计数点间距离的测量结果如图(单位:cm)![]()
(1)电磁打点计时器是一种 仪器,它使用6V以下的交流电源,若交流电的频率为50Hz,则它每隔 s打下一个点。
(2)为了验证小车的运动是匀变速直线运动,请进行下列计算,填入表内(单位:cm)
| S2-S1 | S3-S2 | S4-S3 | S5-S4 | S6-S5 | ΔS平均值 |
| | | | | | |
(3)纸带上的B点和E点对应的物体的瞬时速度分别为VB= m/s,VE= m/s;由此可计算得到物体的加速度a= m/s2。(结果均保留两位有效数字)
(一)(6分)用打点计时器研究物体的自由落体运动,得到如图一段纸带,测得AB="7.65cm," BC=9.17cm已知交流电频率是50Hz,则打B点时物体的瞬时速度为 m/s。实验测出的重力加速度值为 m/s2。![]()
(二)(9分)探究能力是物理学研究的重要能力之一。物体因绕轴转动而具有的动能叫转动动能,转动动能的大小与物体转动的角速度有关。为了研究某一砂轮的转动动能Ek与角速度ω的关系。某同学采用了下述实验方法进行探索:(图)先让砂轮由动力带动匀速旋转测得其角速度ω,然后让砂轮脱离动力,由于克服转轴间摩擦力做功,砂轮最后停下,测出砂轮脱离动力到停止转动的圈数n,通过分析实验数据,得出结论。经实验测得的几组ω和n如下表所示:![]()
| ω/rad·s-1 | 0.5 | 1 | 2 | 3 | 4 |
| n | 5.0 | 20 | 80 | 180 | 320 |
| Ek/J | | | | | |
(1)计算出砂轮每次脱离动力的转动动能,并填入上表中。
(2)由上述数据推导出该砂轮的转动动能Ek与角速度ω的关系式为 。
(3)若测得脱离动力后砂轮的角速度为2.5rad/s,则它转过45圈后的角速度为 rad/s。
(10分)在“验证机械能守恒定律”的实验中(g取9.8m/s2 ,结果保留三位有效数字):
(1)所需器材有打点计时器(带导线)、纸带、复写纸、带铁夹的铁架台和带夹子的重物,此外还需要 (填字母代号) 。
| A.直流电源 | B.交流电源 | C.游标卡尺 |
| D.毫米刻度尺 E.天平及砝码 F.秒表 |
(3)若已知重物的质量为0.2kg,从O点到打下点“4”的过程中重力势能减少量是
(8分)某同学利用竖直上抛小球的频闪照片验证机械能守恒定律。频闪仪每隔0.05s闪光一次,图中所标数据为实际距离,该同学通过计算得到不同时刻的速度如下表(当地重力加速度取9.8m/s2,小球质量m=0.2kg,结果保留三位有效数字):![]()
| 时刻 | t2 | t3 | t4 | t5 |
| 速度(m/s) | 4.99 | 4.48 | 3.98 | ▲ |
(2)从t2到t5时间内,重力势能增量
(3)在误差允许的范围内,若
(双选)关于打点计时器的原理和使用方法,下列说法中正确的是
| A.打点计时器应接交流电源,交流电频率通常为50Hz |
| B.如果纸带上相邻两个计数点之间有四个点,则相邻两个计数点间的时间间隔是0.08s |
| C.如果打点计时器在纸带上打下的点先密集后稀疏,则说明纸带的速度是由小变大 |
| D.电磁打点计时器接在220 V电源上,电火花打点计时器接在6 V电源上 |
(8分)某同学在做探究弹力和弹簧伸长的关系的实验中,设计了如图所示的实验装置。所用的钩码每只的质量都是30g,他先测出不挂钩码时弹簧的自然长度,再将5个钩码逐个挂在弹簧的下端,每次都测出相应的弹簧总长度,将数据填在了下面的表中。
(弹力始终未超过弹性限度,取g=10m/s2)
(1)试根据这些实验数据在右图给定的坐标纸上作出弹簧所受弹力大小F跟弹簧总长L之间的函数关系图线,说明图线跟坐标轴交点的物理意义。
(2)上一问所得图线的物理意义?该弹簧的劲度k是多大?(用N/m做单位)
(6分)在做“互成角度的两个力的合成”的演示实验中,下列叙述中正确的是 ( )
| A.两弹簧秤的拉力可以同时比橡皮条的拉力大 |
| B.若橡皮条的拉力是合力,则两弹簧秤的拉力是分力 |
| C.两次拉橡皮条时,需将橡皮条拉到同一位置,这样做的目的是保证两次弹簧秤拉的效果相同 |
| D.若只增大某一只弹簧秤的拉力大小,而又要保证橡皮条结点的位置不变,只需调整另一只弹簧秤拉力的大小即可 |