题目内容
18、设5×4×3cm3长方体的一个表面展开图的周长为n cm,则n的最小值是
50cm
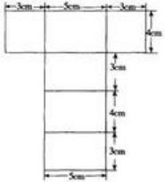
.分析:要使长方体的表面展开图周长为最小值,未剪开部分的棱长应为3个5,2个4.
解答:解:如图所示:

则n的最小值为:3+5+3+4+3+3+4+3+5+3+4+3+3+4=50cm.
故答案为:50cm.
则n的最小值为:3+5+3+4+3+3+4+3+5+3+4+3+3+4=50cm.
故答案为:50cm.
点评:本题考查了长方体的表面展开图的周长计算,解题关键是得出周长为最小值时长方体的表面展开图.
练习册系列答案
相关题目